La propuesta diseñada por Anna & Eugeni Bach para esta finca entre medianeras ubicada en la zona de Sants de la ciudad condal busca liberar el espacio interior mediante la colonización controlada del espacio exterior

Nueva ampliación de la vivienda para albergar la cocina en la zona exterior
Disfrutar del espacio exterior. Cocinar, comer y compartir la tarde con los amigos bajo las hojas de un denso ficus en una habitación al aire libre. Convertir el jardín existente en una estancia más de la casa para generar un oasis dentro del barrio donde trasladar gran parte de la actividad diaria, mientras gozamos del agradable clima mediterráneo. Estas fueron algunas de las premisas que los clientes indicaron a Anna & Eugeni Bach antes de comenzar con el planteamiento y diseño de la reforma de su vivienda.

Espacio de estudio y cocina ubicados en la ampliación exterior
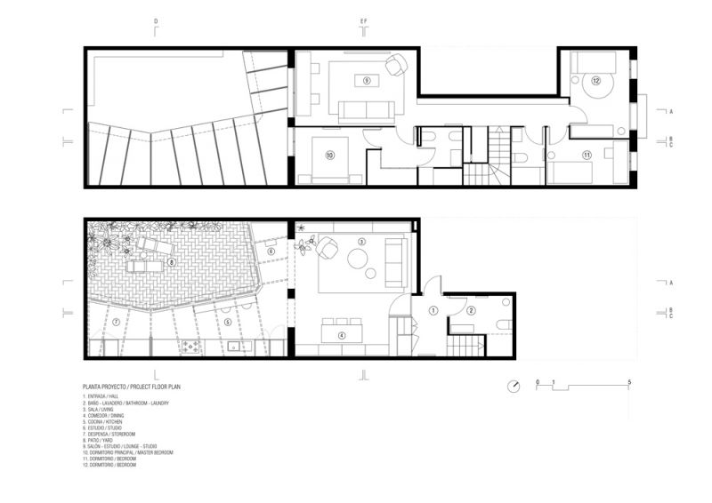
El proyecto, consistente en la reforma y ampliación de una vivienda entre medianeras de dos plantas y con un jardín interior, parte de unas premisas muy claras de liberación del espacio interior y disfrute del espacio exterior de la finca, permitiendo con ello dotar de mayor amplitud a todas la zonas, servidoras y servidas, de la vivienda.

Espacio de salón comedor en la planta baja que se conecta con la ampliación
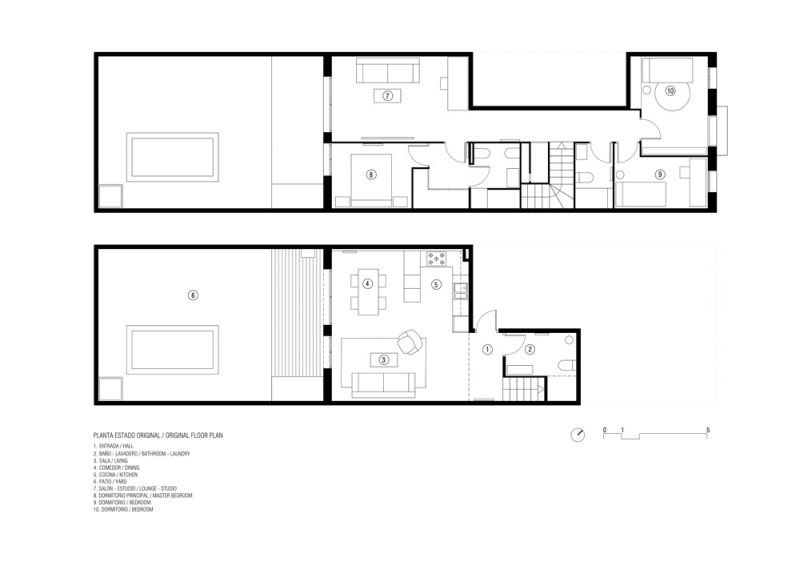
En origen, la vivienda contaba con una cocina y comedor en planta baja, las cuales se encontraban en contacto directo con el jardín a través de grandes ventanales de fachada, mientras que la planta primera estaba ocupada en su totalidad por las habitaciones de los usuarios. Esto dejaba a la vivienda sin un espacio de estar, sin un salón en el que reunirse y disfrutar de la vida en familia o con amigos en el interior.

Plano de distribución de la vivienda en origen

Plano de distribución de proyecto
Por tanto, la premisa principal de los clientes era la de conseguir ampliar la vivienda, liberando la planta baja para generar un espacio de uso y disfrute en conexión con la zona exterior. A esto, se le añade la ampliación de la planta baja mediante la colocación de un volumen que “invade” el jardín a la vez que permite lograr que todas las piezas de la planta baja estén en contacto con el espacio exterior, teniendo con ello largas visuales entre cada una de las piezas y hacia el jardín.

Vista de la cocina diseñada en el interior de la nueva ampliación de la planta baja
En palabras de los propios arquitectos: “El nuevo volumen se realiza con una estructura de madera y vidrio, como un invernadero, en una ubicación donde, por las sombras del propio edificio y las de los vecinos, nunca hay una gran insolación. Por otra parte, al ser una pieza tan transparente, conseguimos que el resto de la planta baja continúe disfrutando de luz natural.”

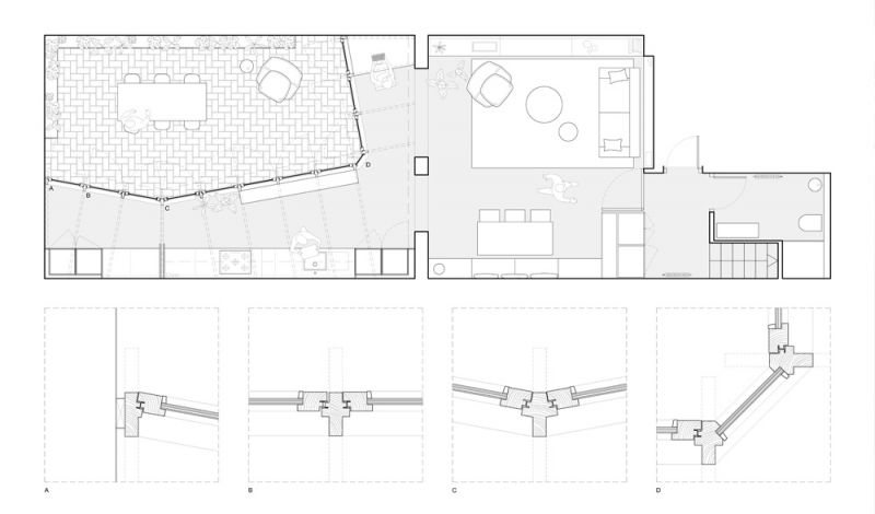
Detalle de distribución de planta baja y de las carpinterías de la ampliación exterior

Vistas desde la cocina al espacio interior y estructura de la ampliación exterior
De igual manera, la nueva fachada de la ampliación se separa de la vertical de la finca mostrando los dos arcos que originalmente encerraban el espacio interior y que ahora actúan como tránsito entre el salón-comedor y la nueva galería con la cocina y el estudio.
Para los arquitectos, gracias al gesto de separar la fachada de la vertical de la finca “la nueva envolvente se libera de las directrices del edificio existente, realizando unas pequeñas inflexiones que permiten más espacio en las zonas de mayor actividad, tanto en el interior como en el propio patio.”

Arcos de la fachada original que conectan el interior con la nueva ampliación
Por otro lado, la intención en la planta primera era la de intervenir lo menos posible en el espacio. Debido a esto, la propuesta se basa en la realización de unos pequeños cambios en el mobiliario de las habitaciones, así como la reformulación de la sala/estudio, cumpliendo con la voluntad de no intervenir en aquello que no fuera estrictamente necesario.

Espacios de salón-comedor en la nueva planta baja interior liberada
Fotografías de Eugeni Bach
Planos de Anna & Eugeni Bach
Green House: Reforma y ampliación de una casa en Barcelona









