Un atrio central se proyecta como centro neurálgico de la casa que sirve para iluminar, ventilar y conectar todos sus espacios, en una casa casi "horadada" en hormigón

Atrio central de la casa visto desde la planta baja y la primera planta
En el centro urbano de Barcelona, una familia quiere construir una casa unifamiliar contando con una parcela bastante profunda y ancha, con el condicionante de partida de la fachada protegida que se ha de mantener. Se trata de una fachada relativamente compacta, en una zona de gran densidad. A pesar de que la densificación de esta parcela podría dar lugar a un espacio oscuro y mal ventilado, la acertada decisión que conforma el proyecto llega con esas premisas.

Emplazamiento de la parcela
La casa, que ocupa la mitad de la parcela, se articula en torno a un patio interior cerrado como de una casa romana se tratase. Este espacio busca la luz cenital a falta de la posibilidad de abrir a las medianeras a la vez que encaja un programa denso. Esta fuente de luz permite una iluminación difusa para toda la casa sin necesidad de más superficie de fachada, pero además soluciona a su vez la ventilación.

Vista del patio interior hacia arriba
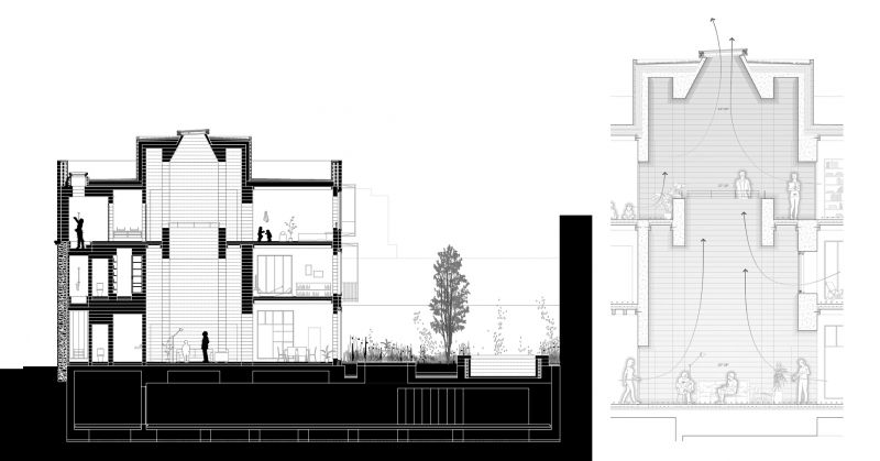
No es por la majestuosidad, resultado de sus proporciones, por lo que este espacio con escala poco doméstica acaba por convertirse en el corazón de la casa. Es porque se proyecta como articulación de todos los espacios que se suceden a su alrededor. No existen los pasillos, sino que los usos se concatenan y distribuyen a través de este espacio tan representativo. El atrio central, para poder abrir su parte superior, cuenta con cuatro pilares, cuya proporción y contundencia geométrica y material contribuyen a reforzar la majestuosidad de este espacio, que acaba siendo el más alto de la casa.
Plano de planta y sección del atrio
La posibilidad de abrir esta ventana cenital junto con su estudiada forma hacen que la casa respire facilitando su ventilación. Se trata además de un espacio de movimiento; los núcleos verticales y la distribución en horizontal se hacen a través de el en los distintos niveles.

Circulación vertical alrededor del atrio
Los espacios se distribuyen jerárquicamente en la parcela, evitando la limitación de las medianeras. Las piezas importantes y de mayor altura están claramente definidas en el espacio. Los espacios servidores se encuadran en los espacios intersticiales aprovechando la forma de la parcela, dando lugar a una arquitectura horadada, como excavada entre los grosores de sus muros. Estos se van adaptando de distinta manera en las diferentes plantas según necesidad.

Interior de una habitación con vistas al exterior
La estructura y la materialidad son un tema importante. Siguiendo con el concepto de roca horadada, se definen unos muros estructurales muy gruesos, los cuales además cuentan con gran estabilidad térmica, realizados en hormigón "pobre" siguiendo una técnica de compactación como un tapial. Esta solución tiene como resultado un material poroso que soluciona la humedad y la acústica de sus espacios.

Fachada interior abierta al jardín
La fachada interior cuenta con las mayores aberturas y celosías para controlar la entrada de luz y calor directos. En definitiva, el éxito de esta casa moderna se basa en el funcionamiento de la tipología de patio tradicional pero sigue siendo una casa urbana.

Fachada exterior compacta cerrada hacia la calle
Fotografías de Adrià Goula
Casa 1736 de H Arquitectes









