El conjunto de casas del Refugio en Bogotá logra acoplarse orgánicamente con su entorno, permitiendo que el peatón perciba los Cerros Orientales y la Sabana de formas únicas, y que el usuario disfrute de una arquitectura sensible.
El arquitecto español Fernando Martínez Sanabria desde muy joven viene a vivir a Colombia, país en el cual se educa y proyecta sus grandes obras arquitectónicas, muchas de las cuáles son hitos de los años noventa. Su arquitectura se caracteriza por la sensibilidad que lo definió como persona, reflejada en cada ambiente, trayendo como resultado espacios orgánicos y de calidad.

Fotografía de Antonio Castañeda Buraglia
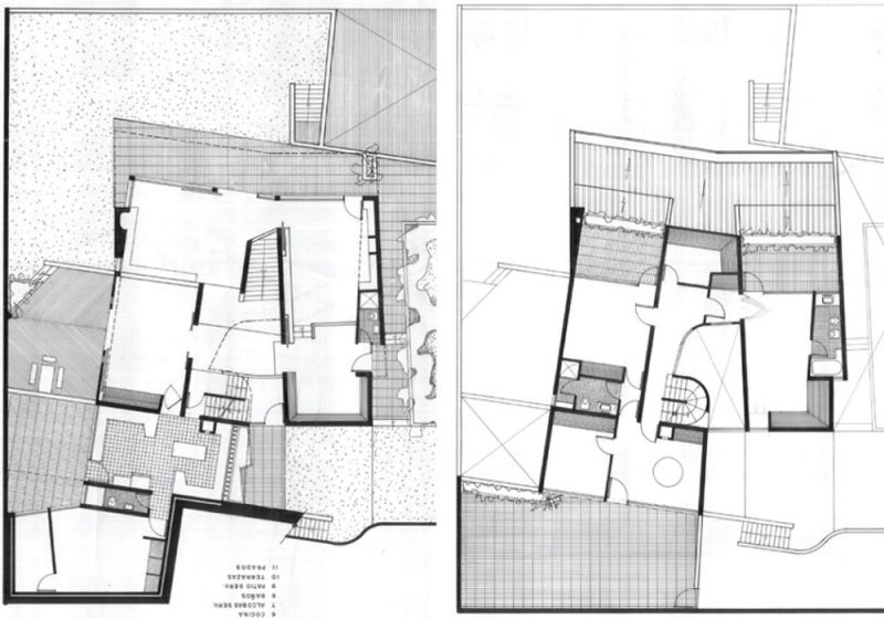
Dentro de sus proyectos más importantes esta el conjunto de casas del Refugio, de una extensión aproximada de un kilómetro de radio en la capital colombiana, Bogotá D.C. El conjunto está compuesto por la casa Wilkie (1962) ubicada en la zona más alta, seguida por la pareja de casas para los hermanos Santos (1962), y por último en la zona más baja la casa Calderón (1963).

Fotografía de Archivo Fernando Martínez Sanabria

Fotografía de IVANMINJAREZ Arquitectura
Las cuatro casas se encuentran en medio de un paisaje urbano definido en las faldas altas de los Cerros Orientales, lo que representaba para el arquitecto un gran reto proyectual, el cual supo afrontar ágilmente jugando con el terreno, permitiendo al peatón tener diferentes perspectivas tanto de los cerros, como de la sabana, y al usuario gozar de un panorama único.

Fotografía de Néstor Africano

Fotografía de Carlos Niño Murcia
Las viviendas están relacionadas entre sí, y están proyectadas en sentido este-oeste aprovechando las condiciones del lote. Adicionalmente, éstas logran ser parte del terreno de forma natural, ocultándose en el lugar de forma simbiótica y orgánica, con volúmenes paralelepípedos.

Fotografía de @OrlandoArq
Formalmente el muro toma protagonismo en la composición de cada propiedad, enfatizando el valor de la intimidad y la privacidad doméstica, controlando la relación interior-exterior, lograda a través de un hall estructurador que se correlaciona con las zonas sociales (salón y comedor), conformando una organización espacial tripartita.

Fotografía de Archivo Fernando Martínez Sanabria

Fotografía de Revista Axxis

Fotografía de Revista Axxis
Por su parte, la cubierta inclinada produce modificaciones de relevancia en las casas, generando tenciones internas orientadas al paisaje, y permitiendo la unidad del volumen externo; el arquitecto por medio de los cielos rasos retoma el concepto moderno de horizontalidad. Otro elemento importante es el ladrillo, el cual no sólo genera una relación con las construcciones vecinas, sino que permite espacios con cualidades notables.

Fotografía de Revista Axxis
Fernando Martínez Sanabria
Fotografías de Antonio Castañeda Buraglia, Archivo Fernando Martínez Sanabria, Néstor Africano, Revista Axxis, @OrlandoArq, IVANMINJAREZ Arquitectura
Casa Wilkie en la cima del conjunto de casas









