El estudio chino X+Living redefine el concepto de librería contemporánea en la ciudad de Tianjin mediante una intervención que fusiona ladrillo y acero en una arquitectura interior fluida, simbólica y profundamente contextual
En un entorno urbano caracterizado por reinterpretaciones tempranas del clasicismo italiano, el proyecto de reforma de la firma X+Living parte de una premisa clara: reconciliar el edificio existente con su contexto histórico sin renunciar a una expresión contemporánea. La decisión de emplear ladrillo rojo como material predominante no solo responde a criterios de integración formal, sino que articula un discurso matérico que enlaza memoria, identidad y técnica.
La nueva fachada introduce proporciones clásicas y elementos de inspiración italiana: columnas decorativas, arcos de medio punto y aleros salientes, reinterpretados desde una lógica abstracta. El ladrillo se dispone en estratos horizontales separados por sutiles huecos que evocan persianas venecianas, un recurso que aligera la masa visual y genera un ritmo vibrante de luz y sombra. Esta estrategia anticipa el lenguaje interior, ofreciendo permeabilidad, profundidad y ambigüedad espacial.
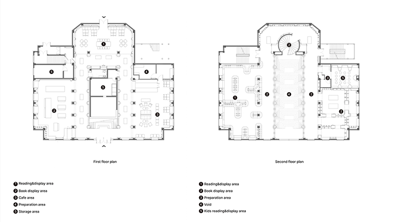
En el corazón del proyecto, una gran sala central actúa como vacío articulador. A su alrededor, placas de acero apiladas configuran un sistema continuo de estanterías que se ondula, se pliega y se eleva para transformarse en gradas y áreas de asiento. La estantería deja de ser mobiliario para convertirse en topografía arquitectónica. El gesto es tanto funcional como simbólico: las gradas ascendentes remiten a la búsqueda del conocimiento y, al mismo tiempo, evocan la identidad portuaria de la ciudad.
La dualidad material del acero azul oscuro y el ladrillo en tonos terrosos, se mantiene deliberadamente en estado casi bruto, subrayando su capacidad estructural y expresiva. La complejidad geométrica del interior exigió la fabricación a medida de aproximadamente 400.000 ladrillos en múltiples formatos, seleccionados para construir superficies curvas que desafían la percepción tradicional de la mampostería.
Más allá del virtuosismo técnico, la intervención plantea una reflexión conceptual: diluir los límites físicos como metáfora de la naturaleza difusa del conocimiento. La arquitectura interior se concibe así como espacio público inclusivo, donde comercio y cultura coexisten sin jerarquías rígidas.
Con este proyecto, X+Living consolida una línea de trabajo desarrollada para la cadena Zhongshuge, en la que la librería se convierte en experiencia inmersiva y en escenario arquitectónico capaz de narrar la identidad emocional de la ciudad que la acoge.
Diseño y materia: reinvención arquitectónica de la librería contemporánea









