El Hotel La Malvasía, obra del estudio sevillano PRP Arquitectos y propiedad del Grupo Kaizen Hoteles, ha sido galardonado con el premio a Mejor Hotel Rural de Lujo de España en los World Travel Awards 2025, reconociendo el valor de una arquitectura que reinterpreta la tradición vernácula con un lenguaje contemporáneo, conectando de una forma respetuosa al edificio con su entorno y el paisaje circundante
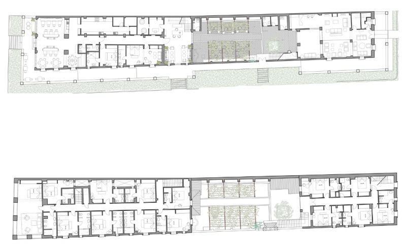
El complejo, desarrollado en dos fases, Malvasía I y Malvasía II, se ubica en la aldea de El Rocío, Almonte (Huelva). En él, los arquitectos hacen un homenaje a la arquitectura tradicional andaluza, evocando a las haciendas y casas de hermandad típicas del lugar.
Las distintas edificaciones albergan un total de 35 habitaciones, con 5 tipologías distintas, todas ellas con grandes ventanales que ofrecen vistas privilegiadas del entorno, el Parque Nacional de Doñana, o de los patios andaluces interiores entorno a los cuales se organizan los espacios.
Estas ventanas permiten inundar el espacio interior con luz natural y garantizan la ventilación natural tan necesaria en el clima andaluz.
Los distintos parios, además de convertirse en el centro neurálgico organizador de la arquitectura, permiten a los huéspedes disfrutar tanto de los espacios interiores como exteriores.
Lo mismo sucede con las galerías cubiertas situadas en planta baja, en las fachadas exteriores, o desde la piscina situada en la cubierta, que ofrecen espacios desde donde poder disfrutar del paisaje de Doñana.
Los espacios interiores están diseñados con especial cuidado, gracias a la colaboración de la interiorista Alejandra Pombo y el equipo de Arquitectura del Mueble con los artífices del proyecto, proporcionando un ambiente cálido y auténtico, fiel reflejo del espíritu del lugar.
Predomina el uso de materiales nobles, como la madera, y los detalles artesanales tanto de cerámica como de piedra. También los textiles adquieren gran protagonismo, proporcionando una paleta cromática variada que a su vez evoca la serenidad pretendida y buscada por los autores del proyecto.
Hotel La Malvasía: tradición con lenguaje contemporáneo









