Casa-Taller en el Cabañal, Valencia, es un proyecto que propone un nuevo modelo de vivienda tipo que combina la rehabilitación con el uso de sistemas modulares prefabricados para ampliar el espacio y completar el programa
Los arquitectos, Alberto Burgos y Teresa Carrau Carbonell proponen un diálogo entre lo nuevo y lo viejo, entre lo industrial y artesanal, recuperando los espacios y materiales de la casa original para albergar el programa principal, quedando los espacios de servicio relegados al módulo de nueva creación.
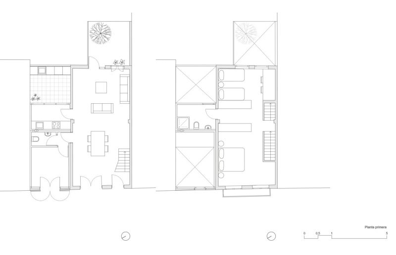
De ese modo, la nueva vivienda, situada en los números 138 y 140 de la calle Barraca, dispone la zona de día en la primera planta de la construcción original, con un amplio salón comedor que disfruta de la presencia de un patio trasero, y la de noche en el nivel superior, con dos dormitorios dobles.
La pequeña parcela anexa, vacía en el momento de la construcción, acoge una estructura metálica ligera, dos módulos de 3x6 m, que albergan en planta baja un aseo y una cocina y en la planta superior un baño, situados en el centro del módulo, reservando en el acceso un espacio a doble altura y un patio trasero comunicado con la cocina.
Los materiales de origen, muros de ladrillo cerámico macizo tomados con morteros de cal y revestimientos de azulejos característicos de la tradición valenciana, contrastan con la materialidad del nuevo volumen, una piel de policarbonato traslúcido que inunda la casa de luz difusa, manteniendo la privacidad de los espacios interiores.
Esta piel de policarbonato, protagonista en el interior, se muestra neutra y respetuosa con el entorno en la fachada, creando una imagen pública de la vivienda que dialoga con la preexistencia sin entrar en conflicto, incluyendo algunos guiños a la tradición constructiva con el uso de la madera en los huecos que se abren en el nuevo módulo en ambos niveles.
Estudio Alberto Burgos | Teresa Carrau Carbonell
Imágenes de German Cabo
Vivienda tradicional + Arquitectura modular 










ESPECTACULAR