Lejos de entender la vivienda social como un ejercicio de mínimos, las viviendas de Castelldefels de Carles Enrich transforman la economía de medios, la topografía y las estrategias pasivas en una arquitectura generosa y colectiva

Volumetría exterior de los dos cuerpos conectados
El proyecto busca maximizar la cantidad de unidades de vivienda sin sacrificar la calidad espacial ni la sostenibilidad, a la vez que se integra de forma sensible en el entorno natural, un bosque de pinos mediterráneos. La volumetría se fragmenta para adaptarse al terreno con un escalonamiento que responde al desnivel de hasta 9 metros, reduciendo el impacto visual y prestando atención al paisaje inmediato.

Espacio central de encuentro de la comunidad
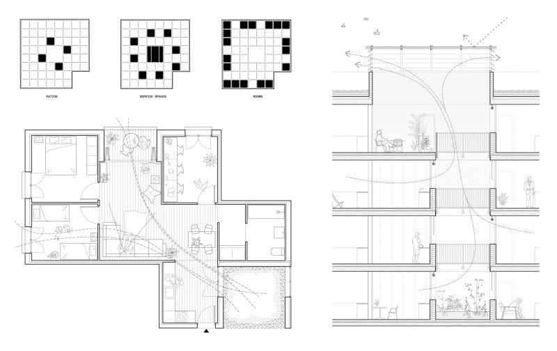
La propuesta se organiza en 8 viviendas por planta con solo dos núcleos de comunicación, lo que permite optimizar la superficie útil de las viviendas. La tipología evita de forma eficiente perder espacio en largos pasillos y se centra en la optimización espacial para reducir el uso material sin renunciar a un alto nivel de habitabilidad

Desnivel en la topografía
Un elemento clave son cuatro patios interconectados, que aportan luz natural y ventilación cruzada tanto a las circulaciones comunes como a todas las viviendas. Estos patios no solo mejoran el confort interior, sino que funcionan como reguladores térmicos pasivos y también como espacios semiexteriores de encuentro vecinal contribuyendo a la cohesión social.

Situación de los dos bloques de viviendas
Las zonas de acceso se conciben como espacios flexibles, más allá de simples vestíbulos, donde los residentes pueden reunirse, y los estacionamientos se piensan como áreas recuperables con ventilación natural mediante celosías cerámicas en fachada. La relación directa con la naturaleza también contribuye a mejorar el microclima exterior y la biodiversidad del entorno.

Planta tipo de vivienda, sección y esquema conceptual
Desde la perspectiva ambiental, el proyecto adopta una estrategia integral de eficiencia energética pasiva. La ventilación cruzada gracias a los patios reduce la dependencia de sistemas mecánicos. Además, la incorporación de instalaciones húmedas alrededor de los patios ayuda al funcionamiento de fluidos para la climatización del espacio.

Patio común de las viviendas
Las terrazas funcionan como espacios intermedios entre interior y exterior, ayudando a regular térmicamente los ambientes y a fortalecer la percepción del entorno. En invierno, la captación solar se maximiza mediante grandes aberturas. En verano, el uso de persianas de madera y un buen aislamiento limitan los sobrecalentamientos y las pérdidas de energía.

Espacios comunes y de circulación
La materialidad desempeña un papel clave en la integración del edificio en su contexto. El uso de cerámica, las fachadas blancas y las persianas exteriores remiten a una tradición constructiva local y mediterránea, al tiempo que cumplen su función climática. En definitiva, el conjunto se perfila como un edificio de casi cero consumo energético, con emisiones de CO₂ muy bajas, demostrando cómo una arquitectura pública puede responder al desafío de habitabilidad, eficiencia y clima sin renunciar a calidad espacial ni a sentido comunitario.

Interior minimalista mediterráneo de las viviendas
Fotografías de Adrià Goula
Viviendas sociales en Castelldefels de Carles Enrich









